Developments
Failsworth Road
failsworth, oldham
Failsworth
68 Houses
Affordable Housing Site
Description
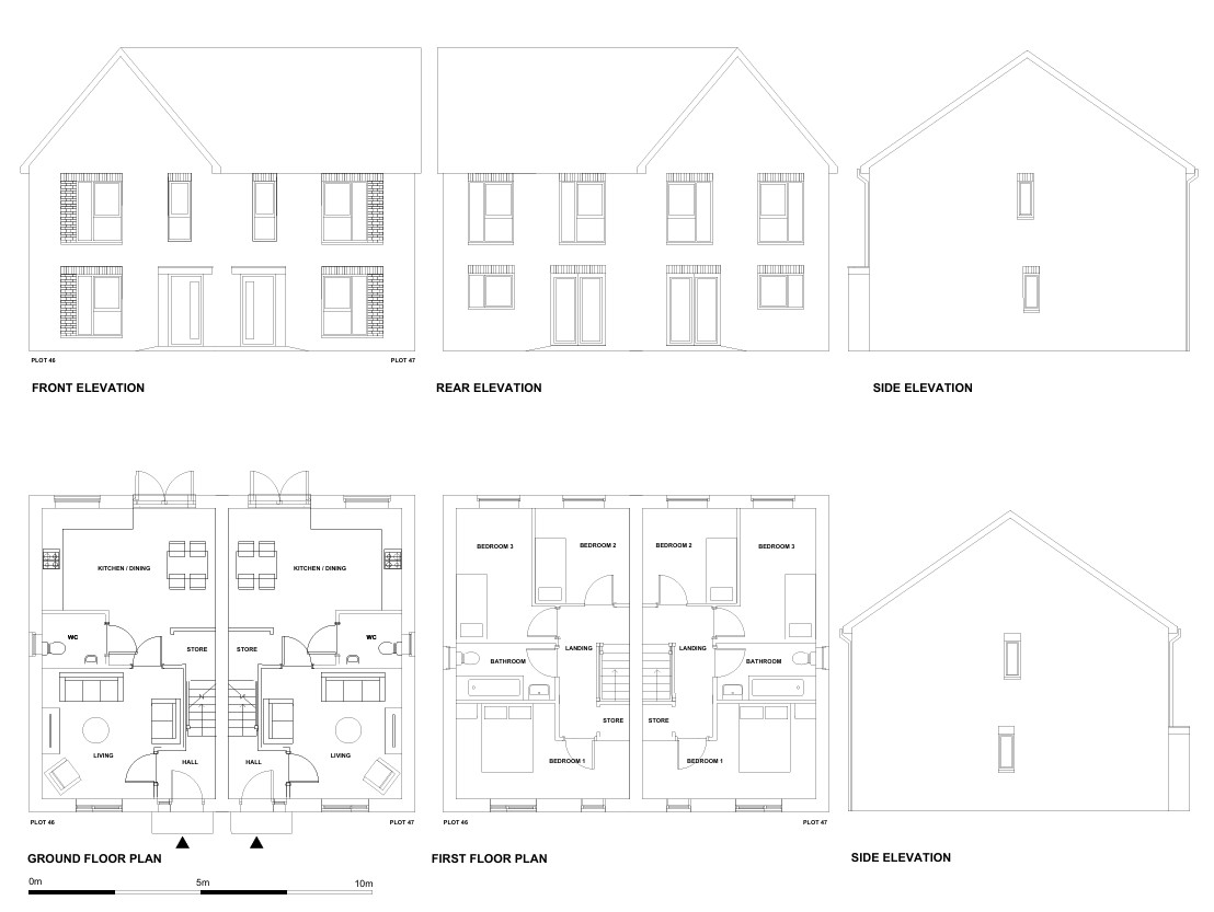
Redwaters are pleased to announce that we have recently submitted a detailed planning application for our new development on Failsworth Road in Oldham.
The development consists of 68 new properties, 100% of which will be affordable houses to provide people and families in Oldham with new, high quality affordable homes at a time when getting on the housing ladder has never been more difficult.
The development will be carried out with a local housing association and Redwaters aim to begin on site in September 2026 dependent on planning and finish on site in October 2028.
More details to be released in due course


